Architecture & Design
GPFLewis_CedarsCentre_Harrow_Feb19-45.jpg

Cedars Community Centre

Cedars community centre

Harrow, NW London

A seamless extension to a thriving community centre in Harrow, adding flexible space for meetings and activities while echoing the original building’s material character.

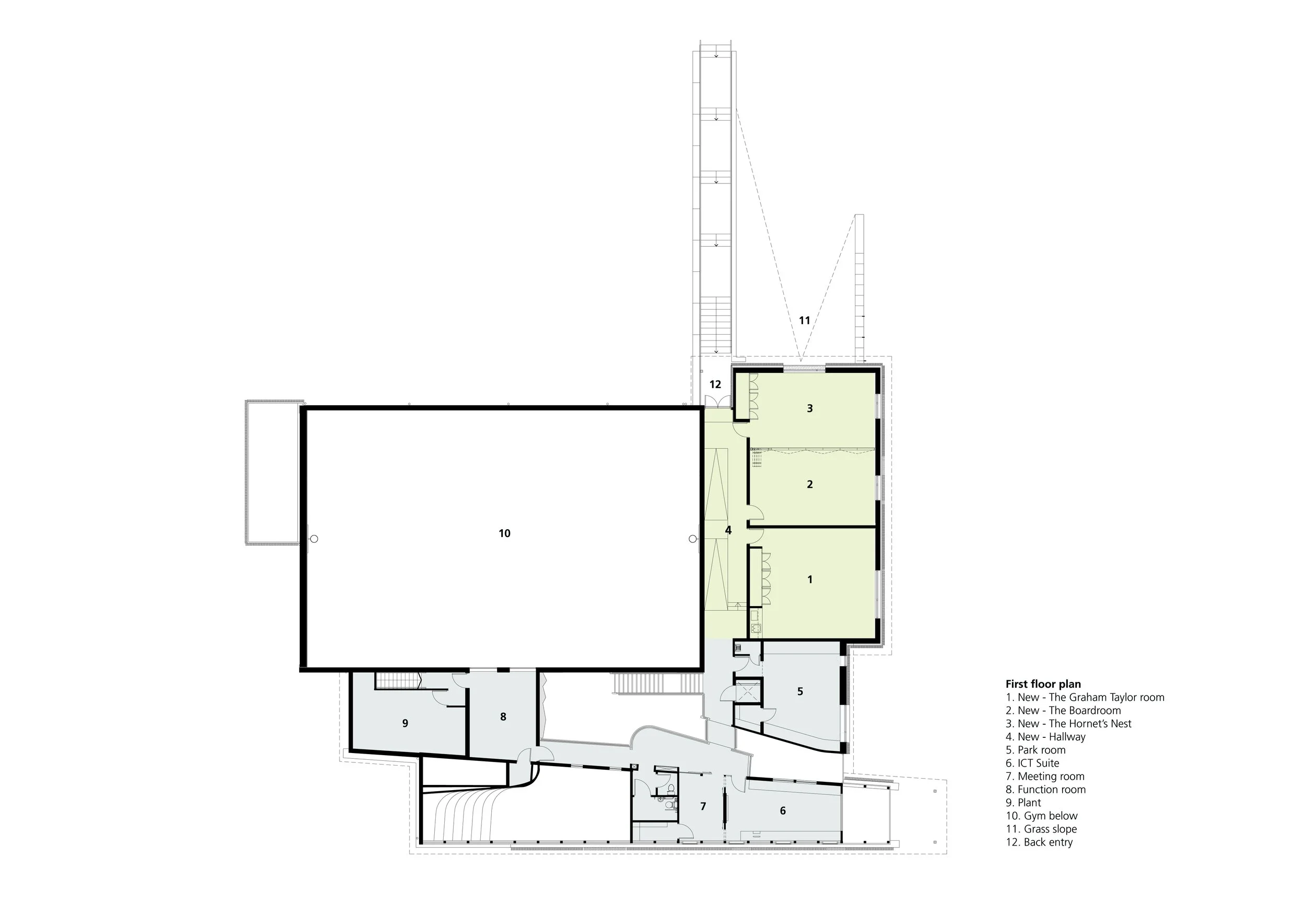
Located in Harrow, northwest London, this extension builds on the success of the Cedars Community Centre, adding flexible new spaces for workshops and activities, including a permanent space for Mencap. Perched above an existing slope and overlooking the football pitch, the 194 sqm structure continues the original building’s sustainable design language—green roof, timber louvres, gabion baskets, and polycarbonate clerestory—creating a seamless yet distinctive addition. The extension was delivered following a successful fundraising effort and planning approval, and now supports the growing needs of this much-valued community hub.

Completed 2019
Credit
project done whilst Senior Designer at LOM Architects